Swiss Embassy in South Korea

Representation in horizontal modernism

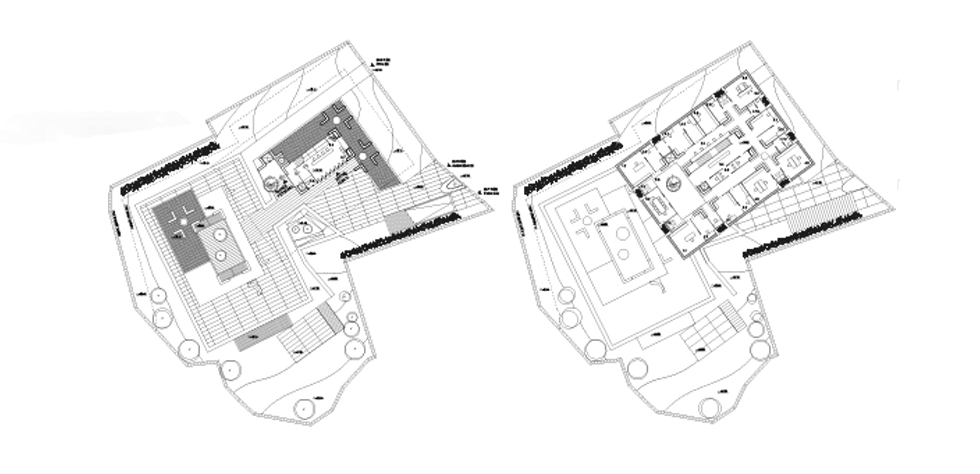
The new Swiss Representation is in Seoul’s Seodaemu-gu district. The composition of two horizontal atrium terrace houses is located within a prime location in the city. The brief asks for two phases. In phase one the existing residence of the ambassador is replaced with a new atrium villa that has a wide terrace floating into the garden. The design of the second phase creates a new chancellery levitating above the villa. A transparent floor to ceiling glass facade at entrance level changes into movable sun shading devices and partition walls on the upper level. Offices are arranged around a multi purpose atrium. The conference room and upper foyer can be combined into a single space for diplomatic receptions with an unique view over the city. The representative and transparent proposal reacts to the site, context and climatic conditions, as a low energy building. Another emphasis lies on safety provisions and the optimal layout of functional zones.

Location

Situated within a garden above a natural stone plateau, the new chancellery offers magnificent views from any room over the city. Two horizontal volumes are embedded into  the topography of the site . The vertical connection of delivery road, ramps and cores. allow a secure separation of public, diplomatic and private access. Living and dining area opens with sliding glass elements fully towards the bamboo garden and pool. 

Construction

Four Vierendaal trusses in reinforced concrete are the main supporting structure of both buildings. The residence spans without columns over the parking deck, meanwhile the Chancellery stands on sheer walls forming a structural cross. Cores house the main circulation, lift and M&E services. The combination of structure and space allows the optimum balance of function, construction, security and space. 

Data

Project: Restricted Design Competition

Team: Florian Schätz, Lei-Ya Wong, Kurt Lloyd Babet, Koraichi El Ghali Bensouda, Aleksandra Rozwadowska, Wojciech Dulinski

Client: Swiss Confederation, Federal Office for Construction and Logistics 

GFA: 4800 sm 

Typology: Diplomatic / Public / Residential

Location: South Korea