Eco-Resort Bromberg

A centre for lifestyle, slow movement and therapy

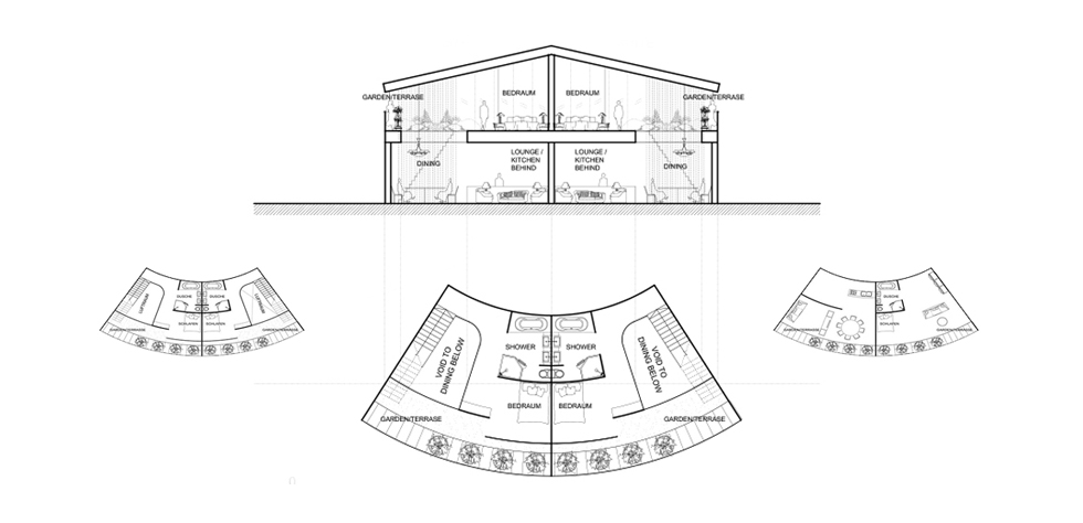
Eco-Resorts come with high standards and demands to ensure minimal impact on the environment. The design has an emphasis on using sustainable materials, low energy housing standards, water and sun catchment facilities and a built-in internal water filter and waste management system. It integrates sustainable, traditional and regional elements into an appealing, minimal and modern architectural statement that follows circular convex and concave lines. Using mainly local materials and supporting the local craftsmanship, the resort with 128 rooms and 18 private villas offers luxurious recreational facilities. Part of the resort houses a therapy and a medical centre furnished with modern asian elements that create an harmonious atmosphere and balance ideal for Yoga, Tai Chi and Slow Movement Therapy. The resort comes fully equipped with security service, wellness area, chimney-lounge and its own signature restaurant, all of which offers a five star experience and an overall pleasant stay.

Location

The resort is located next to the Panorama Golf course Bromberg. The Therapy Centre is strategically located to offer magnificent views over the western rolling hills. The Bromberger Plateau gives space for the Eco Resort with 286 beds and exclusive villas with fine dining restaurant and an incredible panoramic views towards the Alps.

Idea

The design evolves around the full integration of the landscape and offers a relaxing environment ideal for meditation, pilates and yoga exercise. Ayurveda, Infrared and other recreational facilities follow in a radial organization on different levels in column free spaces around zen gardens, terraces and courtyards.

Inspirations

Project: Commission

Team: Florian Schätz, Lei-Ya Wong, Rayson Kan, Duc Duy Nguyen, Prime Tambayong

Client: Panorama Golf Passau Fürstenzell Bau und Betriebs GmbH & Co.KG

Area: 31025 sm

Typology: Hotel, Medical, Residential

Location: Germany