Haus ToCo

Renovation under Energy Conservation Regulation

Germany's new Energy Conservation Regulation sets out codes for thermal insulation and energy loss standards for all new and refurbishment projects. The main objective is to reduce energy consumption and with that the emission of harmful greenhouse gases into the environment. The new law in 2014 stipulates for replacement of older heating systems and tightens the requirements in thermal insulation and M&E systems. As a result, it had led to a higher investment in the energetic refurbishment of a building, wall cladding and technical building installation. The optimal solution for this project is a careful comparison between architectural and technological values that anticipates the requirements of cooling, sunshading or solar heat generation by design. 

Idea

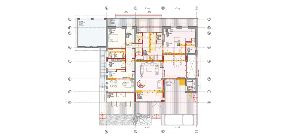
Rising building cost for the implementation of the new Energy Conservation Regulation have led to the renovation and modernization of existing single family houses. Built in 1975, the alteration of this project provides a gym, SPA and office area, whereby kitchen, dining and living become one universal space with flexible wall systems. An efficient central wood stove support the general underfloor heating systems. 

Features

Opening with a standing dormer facing towards the South West, this ensures that the house receives optimal sunlight during the day. A winter garden makes living in the cooler seasons more comfortable. A large timber deck with a BBQ pit and outdoor pool extend the living area into the garden. The family with kids lives in the main part of the house, meanwhile the mother in law lives in a new granny flat with separate entrance.

Data

Project: Commission

Team: Florian Schätz, Lei-Ya Wong, Joanna Goh, Peter Kemper

Client: Private

Area: 592 sm

Typology: Residential

Location: Germany